Der Balkon vor dem Wohnbereich bietet Ihnen genügend Platz, um auch Draußen die Zeit zu genießen.
Ein Tiefgaragenstellplatz zzgl. ein Stellplatz im Freien, ein Wasch,-Trockenraum, Keller und ein Fahrradstellplatz der Ihnen zur Verfügung steht, und der Hausmeisterservice runden dieses schöne Angebot ab.

 
Energieausweis
Art: Verbrauchsausweis
Gültig bis: 22.04.2018
Endenergieverbrauch: 146.40 kWh/(m²*a)
Baujahr lt. Energieausweis: 1993

" /> Der Balkon vor dem Wohnbereich bietet Ihnen genügend Platz, um auch Draußen die Zeit zu genießen.
Ein Tiefgaragenstellplatz zzgl. ein Stellplatz im Freien, ein Wasch,-Trockenraum, Keller und ein Fahrradstellplatz der Ihnen zur Verfügung steht, und der Hausmeisterservice runden dieses schöne Angebot ab.

 
Energieausweis
Art: Verbrauchsausweis
Gültig bis: 22.04.2018
Endenergieverbrauch: 146.40 kWh/(m²*a)
Baujahr lt. Energieausweis: 1993

" />

Logo IMMODRIVE

4 Zi.-Wohnung mit guter Ausstattung

Objektnummer 309 Nutzungsart Wohnen
Vermarktungsart Miete Objektart Wohnung
Objekttyp Etagenwohnung PLZ 89150
Ort Laichingen Land Deutschland
Wohnfläche 98 m² Verfügbar ab (Text) 01.09.2014
Objektnummer 309 Nutzungsart Wohnen
Vermarktungsart Miete Objektart Wohnung
Objekttyp Etagenwohnung PLZ 89150
Ort Laichingen Land Deutschland
Wohnfläche 98 m² Verfügbar ab (Text) 01.09.2014

Film zur Immobilie

360° Tour zur Immobilie

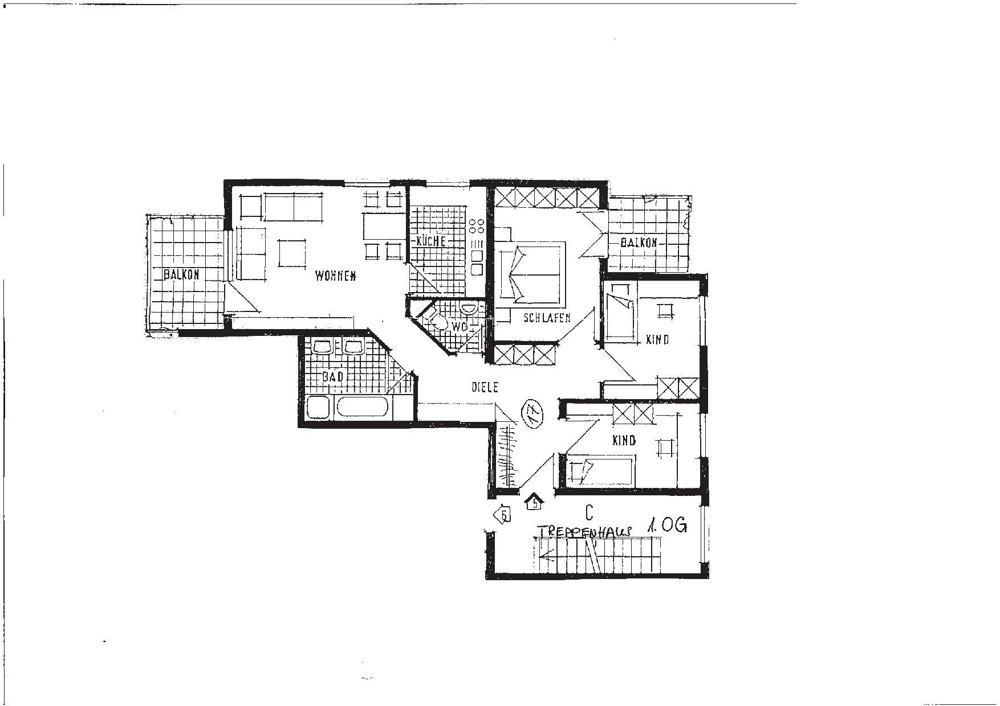
Eine 4 Zimmerwohnung im 1. Stock, die Alles bietet was Familienleben einfach und glücklich macht.
Vom geräumigen Flur aus sind zwei Kinderzimmer und das Elternschlafzimmer mit Balkon zugänglich. Ein extra Gäste-WC sowie ein Badezimmer mit Wanne, Dusche, WC und Waschbecken schließen sich an.
Der helle und gut proportioniert Wohn/Essbereich ist als zentraler Familienplatz bestens geeignet. Die von hier aus zugängliche Küche wird noch mit einer "neuen Einbauküche" bestückt (Foto wird nachgereicht ) so macht das Kochen Spaß.
Der Balkon vor dem Wohnbereich bietet Ihnen genügend Platz, um auch Draußen die Zeit zu genießen.
Ein Tiefgaragenstellplatz zzgl. ein Stellplatz im Freien, ein Wasch,-Trockenraum, Keller und ein Fahrradstellplatz der Ihnen zur Verfügung steht, und der Hausmeisterservice runden dieses schöne Angebot ab. EnergieausweisArt: VerbrauchsausweisGültig bis: 22.04.2018Endenergieverbrauch: 146.40 kWh/(m²*a)Baujahr lt. Energieausweis: 1993
Bodenbeläge mit Parkett und Fliesen.
2 Balkone
Bad mit Wanne, Dusche, WC und Waschbecken
Gäste-WC
Die Einbauküche wird durch eine hochwertige, neue ersetzt. (Foto folgt)
Tiefgaragenplatz und Stellplatz im Freien
Wasch,- und Trockenraum
Fahrradabstellplatz
Keller / Abstellraum
Hausmeisterservice ist in den Nebenkosten enthalten !
Bevorzugte Wohngegend, alle Dinge des täglichen Bedarfs können fußläufig erledigt werden.
Die Stadt Laichingen liegt zwischen den süddeutschen Metropolen Stuttgart und Ulm und verfügt über eine optimale Anbindung die Die BAB A 8 bei der Anschlussstelle Merklingen. Mit rund 11.000 Einwohnern ist Laichingen ein Mittelzentrum und weist eine überdurchschnittliche Infrastruktur (alle weiterführenden Schulen, eine Vielzahl von Ärzten, Krankenhaus etc.) auf. Die Stadt Laichingen besticht durch eine landschaftlich reizvoille Lage, eine aktive Bürgerschaft mit ca. 60 Vereinen und Gruppen, zahlreiche Sport und Vereinsanlagen sowie hervorragende Einkaufsmöglichkeiten.
Bitte geben Sie bei Ihrer Anfrage Ihre komplette Anschrift mit Telefonnummer an. Vielen Dank !
  • Grundriss

Energieversorgung

Energieverbrauchskennwert: 146,4 kWh/(m²a)

Heizugsart: Zentralheizung

Befeuerungsart: Gas