Logo IMMODRIVE

Praxiseinheit in Westerheim!

Objektnummer 990 Nutzungsart Gewerbe
Vermarktungsart Miete Objektart Büro/Praxen
Objekttyp Praxisfläche PLZ 72589
Ort Westerheim Land Deutschland
Verfügbar ab (Text) nach Absprache
Objektnummer 990 Nutzungsart Gewerbe
Vermarktungsart Miete Objektart Büro/Praxen
Objekttyp Praxisfläche PLZ 72589
Ort Westerheim Land Deutschland
Verfügbar ab (Text) nach Absprache

Film zur Immobilie

360° Tour zur Immobilie

Praxiseinheit in bester Lage!

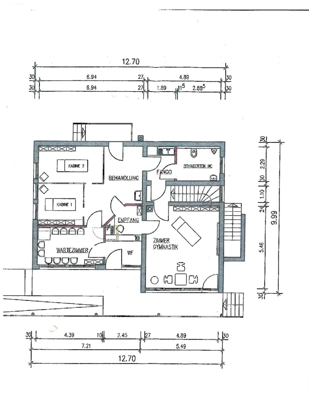
Die hellen Räume mit einer Gesamtfläche von knapp 90qm im Erdgeschoss bieten beste Vorraussetzungen für eine Physio- oder Krankengymnastikpraxis oder eine Büronutzung.

Empfangsvorraum mit Anmeldefenster, ein kleines Wartezimmer, ein großer Raum, der durch mobile Trennwände auch für Behandlungen geteilt werden kann und ein weiterer Behandlungsraum sind die perfekten Räumlichkeiten für Ihre nächste Physio- oder Krankengymnastikeinheit.

Hervorzuheben ist der ebenerdige Eingang für Ihre Patienten. EnergieausweisArt: Bedarfsausweis GewerbeGültig bis: 07.08.2035Baujahr lt. Energieausweis: 1995Endenergiebedarf (Wärme): 361.00 kWh/(m²*a)Endenergiebedarf (Strom): 23.30 kWh/(m²*a)
Nachtspeicheröfen
großes, behindertengerechtes Kunden WC
Nebenkosten von 20,00 Euro/ Monat beinhaltet das Wasser/Abwasser.
Eine Dachsanierung wird im Dezember 2025 durchgeführt.
Zentrale Lage am Kirchenplatz.

Westerheim liegt mit bester Verkehrsanbindung zum Autobahnzubringer Hohenstadt-Merklingen. Ulm ist ca. 30 min. und der Stuttgarter Flughafen ca. 45 min entfernt.

Westerheim bietet die Möglichkeit da zu wohnen und zu arbeiten wo andere Urlaub machen.

Der Luftkurort Westerheim ist eine der schönsten Gegenden der schwäbischen Alb mit hervorragender Infrastruktur. Die Infrastruktur lässt trotz ländlichem Raum keine Wünsche offen. Gemeindeverwaltung am Ort, Grundschule, Kindergarten, Apotheke, Arzt, Bäcker, Metzger, Lebensmittelgeschäft und Tankstelle. Weitere Ärzte und Schulen befinden sich im sechs Kilometer entfernten Laichingen.

Zur Freizeitgestaltung stehen ein Hallenbad, Sauna, Campingplatz mit Freibad, Tennishalle, Rad- und Wanderwege, sowie Thermalbäder in Ditzenbach und Beuren zur Verfügung. Reges Vereinsleben vom Sportverein bis hin zum Faschingsclub. Der Winter wird durch Langlauf, Ski- und Snowboardvergnügen abgerundet.

Genießen Sie unser wohlfühlendes Klima und atmen Sie in unseren Wäldern und Wiesen wieder tief durch.

Viel Spaß auf Ihrer Entdeckungsreise durch unsere Region!
Bitte geben Sie bei Ihrer Anfragen Ihre Adresse, Email und Telefonnummer an, damit wir Sie erreichen können.

Bitte beachten Sie: Wir sind vom 22.12.2025 bis einschließlich 07.01.2026 im Weihnachtsurlaub und unser Büro bleibt in dieser Zeit geschlossen. Ab dem 08.01.2026 sind wir wieder für Sie da.
  • Grundriss Praxis

Energieversorgung